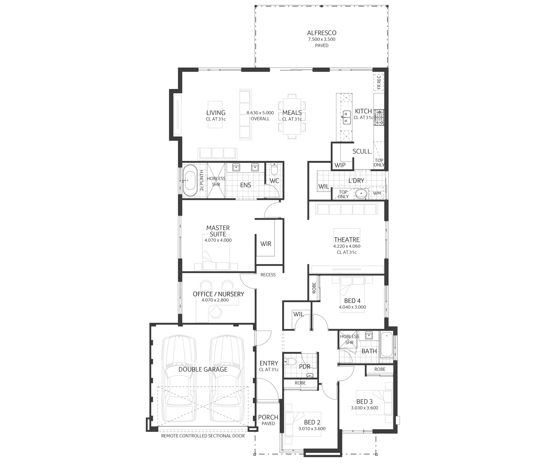
Taking you back to the height of Mid-Century design the Atomic boasts clean straight lines and natural texture. Four well-sized bedrooms with built-in robes, a home theatre, and scullery and laundry seamlessly flow into the light and bright open-plan living area.
The minor bedrooms are cleverly zoned at the front of the home, away from the master suite, making this the ideal home for any growing family. Lots of storage is on offer throughout the home and there is plenty of space to retreat to private areas. There is a large home office at the front of the home, as well as a powder room and home theatre. The open plan living/dining, gourmet kitchen, scullery and huge alfresco are an entertainers dream, with lots of natural light to bring the indoors and outdoors together.
When you're ready to build, we're ready to listen.



